随着消费升级以及年轻世代消费新势力的崛起,重体验、重颜值、个性化、多元化需求成为新的消费特点。金丝玉玛加快终端门店的升级速度,依托时尚前卫且覆盖全品类的新一代形象店面,将进一步提升品牌影响力和门店服务能力。
2022年,更多崭新的金丝玉玛标准形象店应声落地。从门头形象到店面布局到样品选择,都做到了更加科学合理的安排,为当地消费者带来时尚、奢雅、智能、绿色的生活品味和产品体验。快来跟着小编一起走进新装门店,感受不一样的潮流与轻奢。
Vol.1
金丝玉玛 大连店
构筑现代家居美好生活
金丝玉玛大连店经过数月的重装升级迎来开业,为当地消费者带来一场视觉盛宴。在店面形象上结合金丝玉玛高端设计水准,在选材区、样板间、设计洽谈区、文化区等区域布局与设计充分考虑消费者购买体验与实体卖场环境,贴合现代品质生活。
地址:大连市沙河口区五一路105号幸福家居世界
一楼临街20、21、22、33、34、35
面积:550㎡

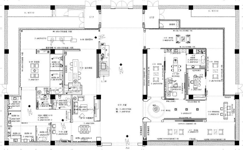
平面图

超高大堂,纵向、横向相互连贯,用岩板大面积铺贴,视觉上更显气势。大连店整体施工及材料按照金丝玉玛标准严格执行,达到放大空间美的效果。
店面装修在产品系列分区上升级强化,K金类产品和非K金类产品分区明显,在产品选材上更集中,路线更通畅,有效引导客户快捷便利地挑选产品。


选 材 区

形象接待区,一片到顶的经典K金岩板“冰岛魅蓝”(1-JKG1224126)背景墙给人视觉冲击感与吸引力,大规格深灰色“特伦深灰”(3-JJKG826129)铺贴地面,恰到好处地透露出高端轻奢的空间质感。


星空体验间,诠释金丝玉玛独有的星空文化调性,K金星空岩板所呈现的白天黑夜独特视觉效果,引领人们沉浸式体验浪漫星空之旅,让新老客户有了“耳目一新”的空间新体验。


金丝玉玛大连店,无论是产品、格调、设计都焕新升级,作为金丝玉玛品牌形象输出的重要窗口,让大连的消费者和设计师直观感受金丝玉玛原创产品之美,享受高品质的生活空间解决方案。
Vol.2
金丝玉玛 宜章店
造就理想家居生活
在产品迭代和品牌理念的融合下,终端门店装修更重视品牌价值提升的彰显。金丝玉玛宜章店,从消费者体验角度出发,以深内涵+高颜值加强艺术化门店形象,唤醒和激起消费者心灵上的共鸣。
地址:湖南省宜章县幸福城B区
面积:384㎡

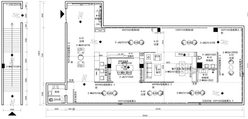
平面图
顺阶而上,如《桃花源记》般“初极狭,才通人,复行数十步,豁然开朗。”前方是一片到顶的岩板背景墙,自然纹理堪比鬼斧神工,产品极为舒适地呈现,不争不抢恰到好处。
品牌形象背景墙,以激烈的红蓝互补色使空间跳跃、灵动,搭配地面富有艺术感纹理的深灰色瓷砖,以视觉冲击感丰富客户感受。精致小巧的宇航员艺术背景墙,既能体现产品文化,又能满足年轻人逛店打卡拍照的需求。
走进如艺术画廊般的选材区,这里展示金丝玉玛全新原创“金”品,K金星空岩板、K金岩板、K4瓷砖、K金木纹砖……符合现代化审美的趋势和考量,色彩纹理运用上更为大胆,独特K金工艺点缀下更显精致轻奢,全方位满足顾客个性、多元的装修需求。


金丝玉玛宜章店,一个专为美好生活方式打造的艺术馆,用最真实的生活场景体验,最新且全的产品选择,为当地消费者实现梦想中家的模样。
金丝玉玛升级门店陆续落地各地市场,为更多终端用户提供更好的服务和更美好的空间解决方案,期待你光临金丝玉玛各门店解锁!